Located near the show of Lake Michigan, Artspace Uptown Artist Lofts is one aspect of a community-led downtown redevelopment strategy that centers on the arts. As the tallest building in the nationally-designated Franklin Street Historic District, the six-story former Warren Building now showcases 44 units of affordable live/work space for creatives and their families, a ground-floor classroom, and commercial space. The project stands as the centerpiece of the Uptown Arts District that has seen significant signs of economic renewal.
Artspace Uptown Artist Lofts
Historic Preservation by the Lake
717 Franklin Street Michigan City, IN, 46360
Get property updates
Sign upOverview
Architect
Kil Architecture & Planning
est. 2016
Development Type
Live/Work Affordable Artist Housing
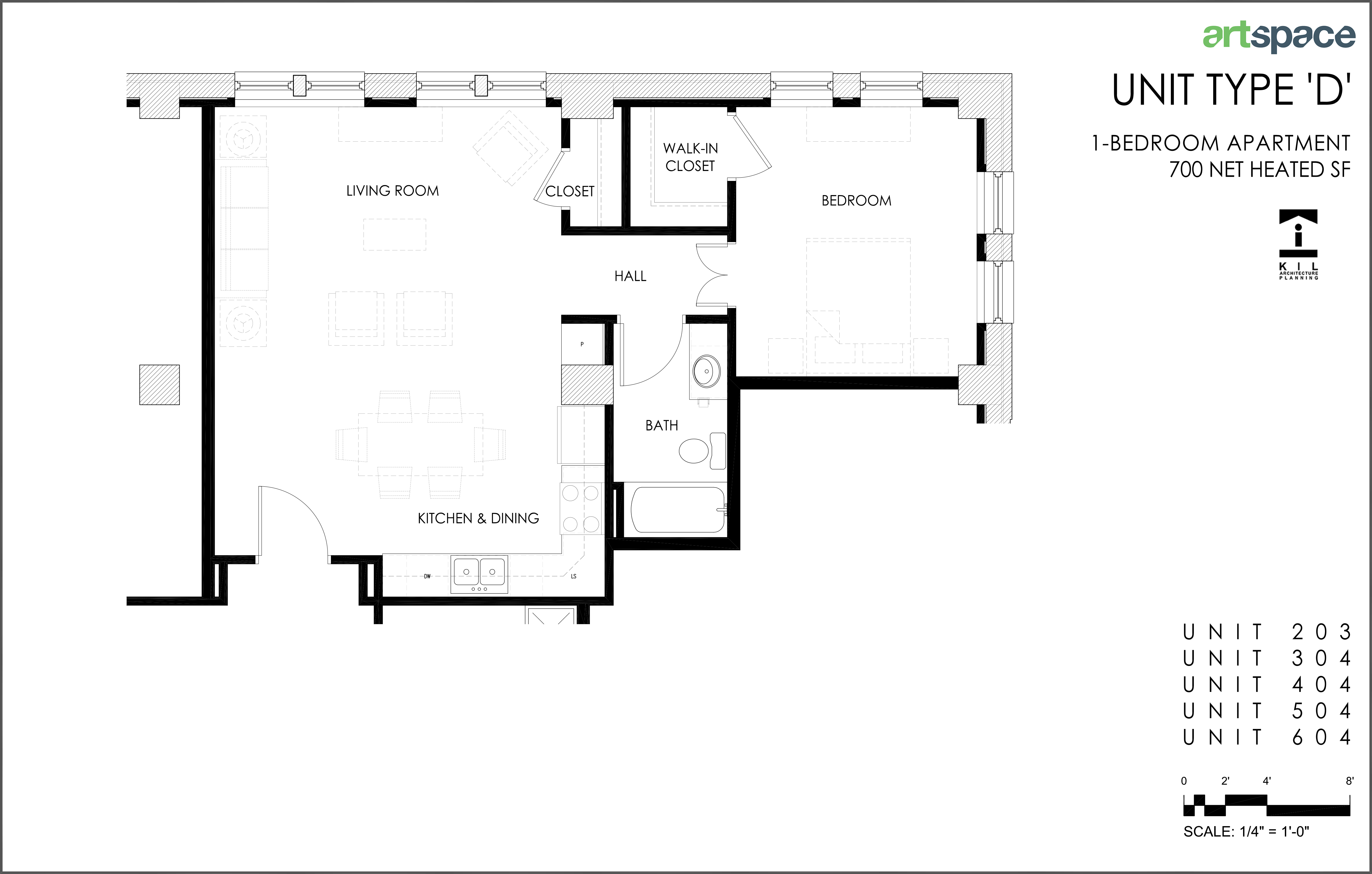
Number of Units
44
Types of Units
Studio, One- and Two-Bedrooms
Total Area
67,000 sq. ft.
Features
Resident Gallery
1 of 1
Featured Gallery: Artspace Uptown Artist Lofts
Michigan City took a chance on the Artspace Uptown Artist Lofts, but what a difference it has made on the residents who live there and the vitality of the downtown. Video by My Michigan City, December 2017.

Contact
Please include "Uptown Artspace Lofts leasing question" in the subject line of your emails to ensure a response.